Campbells Auctioneers

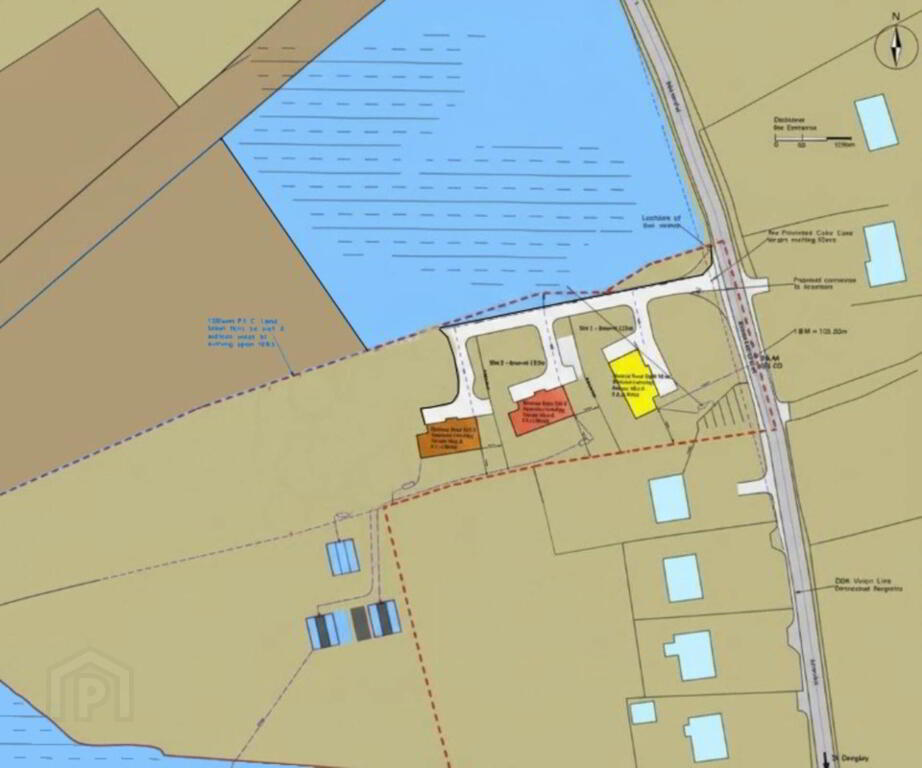
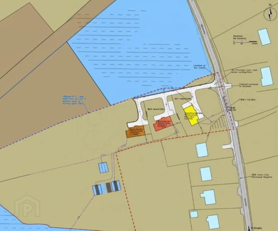
House Type B, Site 2 Meenmore Dungloe

4 Bed Detached House For Sale

€379,950

Print additional images & map (disable to save ink)

Photo 1 of House Type B, Site 2 Meenmore, Dungloe

Telephone:

(074) 952 1020

View Online:

www.campbells.ie/1050705

Key Information

Address House Type B, Site 2 Meenmore Dungloe
Price Last listed at Guide price €379,950
Style Detached House
Bedrooms 4
Receptions 1
Bathrooms 3
BER Rating
Status Sale Agreed
PSRA License No. 001276

Features

  • Ideal Family / Holiday Home
  • A Rated
  • Convenient Location

Additional Information

Campbells are delighted to present these Newly Built, A-Rated, Four-Bedroom Detached Homes.

Located in the townland of Meenmore, just one mile from Dungloe Main Street, this exclusive development of 3 Detached Homes offers modern, energy-efficient living within easy reach of all local amenities. Each home will be finished to a high standard, providing spacious accommodation ideal for families or as an exceptional holiday retreat.

K1137
________________________________________
Key Features
A-Rated Energy Efficient Homes
________________________________________
Kitchen
• Fully fitted kitchen with granite worktops and granite splashback
• Tiled flooring
Utility Room
• Fully fitted with granite worktop and granite splashback
• Tiled flooring
Main Bathroom
• Tiled floor
• Bath
• WC
• Wash hand basin
• Shower
• Splashback areas fully tiled
• Walls tiled halfway
Ensuite
• Tiled floor
• WC
• Wash hand basin
• Shower
• Splashback areas fully tiled
• Walls tiled halfway
________________________________________
Internal Finishes
• Painted white throughout
• White skirting and architrave
• Solid White or Oak internal doors
• Oak staircase
External Works
• Lawns fully sown
• Concrete footpaths surrounding the property
• Tarred and kerbed driveway and access road
________________________________________
Please note: No appliances are included. No additional floor coverings, other than those specified above, are provided.
________________________________________

For further details, please contact Campbells Auctioneers.



House Type B - Site 2

Kitchen
Tiled Floors, Fully Fitted with Granite Worktop and Splash back Area



Utility
Tiled Floors, Fully Fitted with Granite Worktop and Splash back Area


Bathroom
Tiled Floor,Bath,WC,Wash Hand Basin,Shower, Splash back Areas to be Fully Tiled
Walls Tiled Halfway


Ensuite
Tiled Floor,WC,Wash Hand Basin,Shower, Splash back Areas to be Fully Tiled
Walls Tiled Halfway


Internal
Painted White Throughout, White Skirting and Architrave, Solid White / Oak Doors, Oak Stairs,


External
Lawns Sown Out, Concrete Footpath Surrounds, Tarred and Kerbed Driveway and Access Road




what3words /// failed.cyberspace.basks

Notice
Please note we have not tested any apparatus, fixtures, fittings, or services. Interested parties must undertake their own investigation into the working order of these items. All measurements are approximate and photographs provided for guidance only.

BER details

BER Rating:

BER No.: 118977875

Energy Performance Indicator: Not provided

  • Campbells Auctioneers

    Campbells Auctioneers

    (074) 952 1020

Photo Gallery

Photo 1 of House Type B, Site 2 Meenmore, Dungloe Photo 2 of House Type B, Site 2 Meenmore, Dungloe Photo 3 of House Type B, Site 2 Meenmore, Dungloe Photo 4 of House Type B, Site 2 Meenmore, Dungloe Photo 5 of House Type B, Site 2 Meenmore, Dungloe Photo 6 of House Type B, Site 2 Meenmore, Dungloe Floorplan 1 of House Type B, Site 2 Meenmore, Dungloe Floorplan 2 of House Type B, Site 2 Meenmore, Dungloe Floorplan 3 of House Type B, Site 2 Meenmore, Dungloe Floorplan 4 of House Type B, Site 2 Meenmore, Dungloe Photo 7 of House Type B, Site 2 Meenmore, Dungloe Photo 8 of House Type B, Site 2 Meenmore, Dungloe Photo 9 of House Type B, Site 2 Meenmore, Dungloe Photo 10 of House Type B, Site 2 Meenmore, Dungloe BER 1 of House Type B, Site 2 Meenmore, Dungloe

Location

Visit www.campbells.ie for further details.