Campbells Auctioneers

1 Garden Court, Gweedore Road, Dungloe, F94 H6DF

Shop With Living Accomodation For Sale

Offers over €250,000

Print additional images & map (disable to save ink)

Photo 1 of 1 Garden Court, Gweedore Road, Dungloe

Telephone:

(074) 952 1020

View Online:

www.campbells.ie/1039512

Key Information

Address 1 Garden Court, Gweedore Road, Dungloe, F94 H6DF
Price Offers over €250,000
Style Shop With Living Accomodation
Status For sale
PSRA License No. 001276

Features

  • Prime Location
  • Development Potential
  • Investment Opportunity

Additional Information

Campbells are delighted to present for sale this prime retail premises with extensive first and second floor accommodation.

Ideally positioned just off the main street, this property offers an exceptional opportunity for commercial use with excellent scope for further development.

The Ground Floor comprises a bright and spacious Retail area together with a Self-Contained Office, a Large Storage room, a Kitchen, Bathroom facilities and additional Storage to the rear.

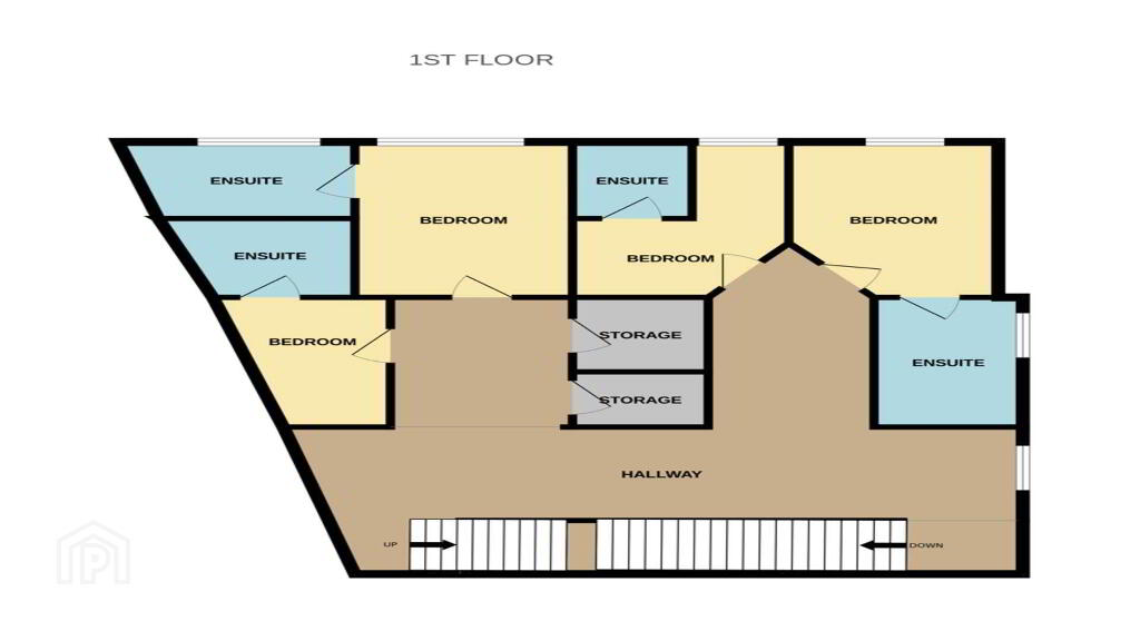
The First Floor Accommodotion consists of No.4 En Suite Bedrooms which were formerly used as Hostel Accommodotion, along with separate W.C.s.

The Second Floor provides multiple Bedrooms and Large Bathroom Area making Both upper levels particularly versatile for Redevelopment.


Externally, the Property Benefits from Parking to the rear and enjoys the advantage of its Prime Location on the N56, ensuring Strong Visibility and Accessibility.

This is an Opportunity to Acquire a Substantial property with Potential for Investors, Business owners or Developers alike.

Our Ref: K1099



Notice
Please note we have not tested any apparatus, fixtures, fittings, or services. Interested parties must undertake their own investigation into the working order of these items. All measurements are approximate and photographs provided for guidance only.
  • Campbells Auctioneers

    Campbells Auctioneers

    (074) 952 1020

Photo Gallery

Photo 1 of 1 Garden Court, Gweedore Road, Dungloe Photo 2 of 1 Garden Court, Gweedore Road, Dungloe Photo 3 of 1 Garden Court, Gweedore Road, Dungloe Photo 4 of 1 Garden Court, Gweedore Road, Dungloe Photo 5 of 1 Garden Court, Gweedore Road, Dungloe Photo 6 of 1 Garden Court, Gweedore Road, Dungloe Photo 7 of 1 Garden Court, Gweedore Road, Dungloe Photo 8 of 1 Garden Court, Gweedore Road, Dungloe Photo 9 of 1 Garden Court, Gweedore Road, Dungloe Photo 10 of 1 Garden Court, Gweedore Road, Dungloe Photo 11 of 1 Garden Court, Gweedore Road, Dungloe Photo 12 of 1 Garden Court, Gweedore Road, Dungloe Photo 13 of 1 Garden Court, Gweedore Road, Dungloe Photo 14 of 1 Garden Court, Gweedore Road, Dungloe Photo 15 of 1 Garden Court, Gweedore Road, Dungloe Photo 16 of 1 Garden Court, Gweedore Road, Dungloe Photo 17 of 1 Garden Court, Gweedore Road, Dungloe Photo 18 of 1 Garden Court, Gweedore Road, Dungloe

Location

Visit www.campbells.ie for further details.